物件情報
不動産購入
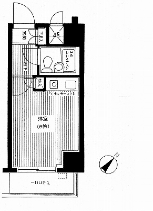
売買物件 ライオンズマンション桜台第3 1991年築
専有面積
16.53m2
バルコニー面積
2.60m2
◇所 在 地:練馬区豊玉北2-21-17
◇敷地面積:261.81㎡
◇延床面積:1,180.11㎡
◇構造規模:鉄骨鉄筋コンクリート造、地上9階建
◇総戸数:40戸
◇竣工:1991年2月(平成3年)
◇施工:オリエンタルコンクリート㈱
◇管理:㈱長谷工コミュニティ 日勤(日曜・金曜以外11時迄)
◇敷地権利:敷地権(所有権)
設備
・カラ―TVモニター付オートロック
・光ファイバー
・CATV/BS/CS
・宅配ボックス
・防犯カメラ
・システムキッチン(ガス3口・浄水器)
・フローリング・フラットフロアー
・浴室暖房乾燥追焚フルオートバス
・ウォシュレット
・エアコン
◇取引態様:専任媒介
◇敷地面積:261.81㎡
◇延床面積:1,180.11㎡
◇構造規模:鉄骨鉄筋コンクリート造、地上9階建
◇総戸数:40戸
◇竣工:1991年2月(平成3年)
◇施工:オリエンタルコンクリート㈱
◇管理:㈱長谷工コミュニティ 日勤(日曜・金曜以外11時迄)
◇敷地権利:敷地権(所有権)
設備
・カラ―TVモニター付オートロック
・光ファイバー
・CATV/BS/CS
・宅配ボックス
・防犯カメラ
・システムキッチン(ガス3口・浄水器)
・フローリング・フラットフロアー
・浴室暖房乾燥追焚フルオートバス
・ウォシュレット
・エアコン
◇取引態様:専任媒介
お問合わせ
03-3403-4851